漫步在浪漫的法式酒堡庄园

漫步在浪漫的法式酒堡庄园


拉斐水岸,是京北新城首席红酒主题百万级别墅庄园,融合法国、意大利、西班牙、德国、美国等五大世界红酒产区风情建筑,演绎世界级葡萄酒庄园,所以售楼处的设计必然要延续红酒的文化特色。

Stroll in the romantic French wine Castle Manor


项目名称:  拉斐水岸售楼处

工程地址:  北京官厅水库

工程面积:  1500㎡

主要材料:  柚木、洞石、石材马赛克、古铜拉丝

风格需求:  法式新古典主义+美式元素的混搭风格

设计主题:  法式红酒庄园

主色调:    米黄、乳白、松木原色

设计机构:  北京鸣仁别墅装饰机构


空间改造说明

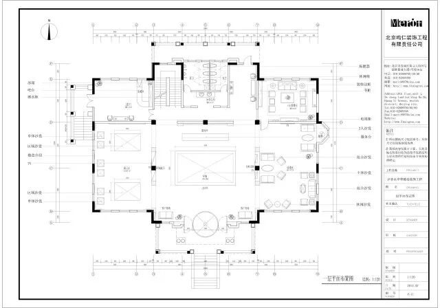
一层平面布置图

原始空间的大堂属于两翼对称式布局、大开间坡屋顶的结构形式,这种结构让人感觉视觉无中心,无向心力,设计师通过改造空间的结构模式让我们有了中心轴式的向心力,主体明确,一进主入口就有一种上升的延拔感,通过垭口设计在平面上形成两向回流的销售流线,中庭的背景墙一主两附,企业背景文化墙是一种清晰的表达,中心沙盘上空借用原始建筑态势,吊入主灯,与下方的沙盘相呼应。

设计构思

整个创意思想是以酒堡庄园为主题,突出体现一种大气挺拔的空间张力、向心力和凝聚的力量。又因此项目临近官厅水库,故水岸的理念被设计师充分地应用在空间的各个表现方面,突出水岸别墅的优势,使项目的主旨得以深化。


空间设计说明

大堂

大堂是整个售楼处的重心,也是售楼处的“脸面”,设计师将水波纹的形态在天花上显现出来,突出水岸文化特点,色调明朗,柚木与洞石的结合,使空间庄重大气,和谐统一。


模型展示区

中庭沙盘区两侧设置了两个单体沙盘的展示区,从大的规划到细部的深入,让人一目了然,更直观地感受拉斐水岸的魅力。


洽谈区

洽谈区采用法式新古典风格与美式元素的结合,与中庭大堂相连,使其风格得以延续;双向垭口的设计,开放灵动;顶面哥特式的顶棚,精致优雅,与大厅庄重的气氛交相辉映。


VIP洽谈区

VIP洽谈区像一个家庭室,让交流更亲近,没有了商业的距离,留下的只是与人交流时愉悦和畅快的心情。



签约区

这个空间需要营造一种祥和的气氛,大量的实木应用,使空间无时无刻不飘着一股木质的芳香,放松呼吸,让身心享受一次自然的回馈。


地下过廊

进入庭院层首先经过一个开放而又层次性分明的过廊,两侧设计了展示酒文化的橱窗,这些古老的佳酿,仿佛将历史的时间凝固在这里。漫步其中,VIP厅、展厅和自助餐厅依次排开,香草的芳香,红酒的醇香,置身其中,感受着法式的浪漫情怀。


地下餐厅

天花造型独具匠心,具有强烈的序列感。新古典家具的修饰,加上整面墙体的装饰画,空间感觉不失单调,反而增加了强烈的冲击感。


地下酒吧

地下酒吧是专供VIP客人品鉴红酒的地方,从公元前350年在伊朗发现了第一瓶红酒,时至今日人们在品尝红酒的时候,已不只是为那浓浓的醇香,更有一种深厚的文化深深吸引着我们。


影音室

为了保证试听达到最佳的效果,将影音室设计成一个半封闭的空间,天花采用拱形结构,木质护墙板装饰,有利于降低噪音和干扰,搭配古典法式家具,空间色调统一和谐。


设计创造

我们是鸣仁,一个专注高端、专注品质的别墅装饰设计机构

北京鸣仁别墅装饰

VIP热线:4006-030-999

如果喜欢,请点个赞再走❤



文章分类: 装修攻略
分享到:
文章列表

09-20

09-21

09-20

09-20

09-20

09-20

09-20

09-20

09-20

09-20

09-20

09-20

09-20

招商加盟客服
 
 
 联系方式
客服热线:010-8891 1111
邮箱:merit9887@sina.com